NDIS Housing

NDIS/SDA Housing

 
 

NDIS/Specialist Disability Accommodation

NDIS/SDA projects are about compliance fundamentally but also about making homes for people that are more than the sum of their compliant parts. We focus beyond compliance on the creation of attractive and comfortable accommodation for people who happen to have special needs.

 

Plympton Park Project, South Australia

Plympton Park involves the creation of two villa units facilitating high physical support. Both dwellings have onsite carer accommodation. One dwelling is a 1 one bedroom villa, and the second dwelling is a 2 bedroom villa, both plus staff accommodation areas. The plans are generous to cater for wheelchair turning circles, and the build will have future provision for ceiling hoists and automated doors. The kitchens and bathrooms have adjustable benches & vanities, and the specification of these dwelllings is ‘livable’ rather than as ‘robust’.

The Plympton Park project has been documented and is about to be tendered.

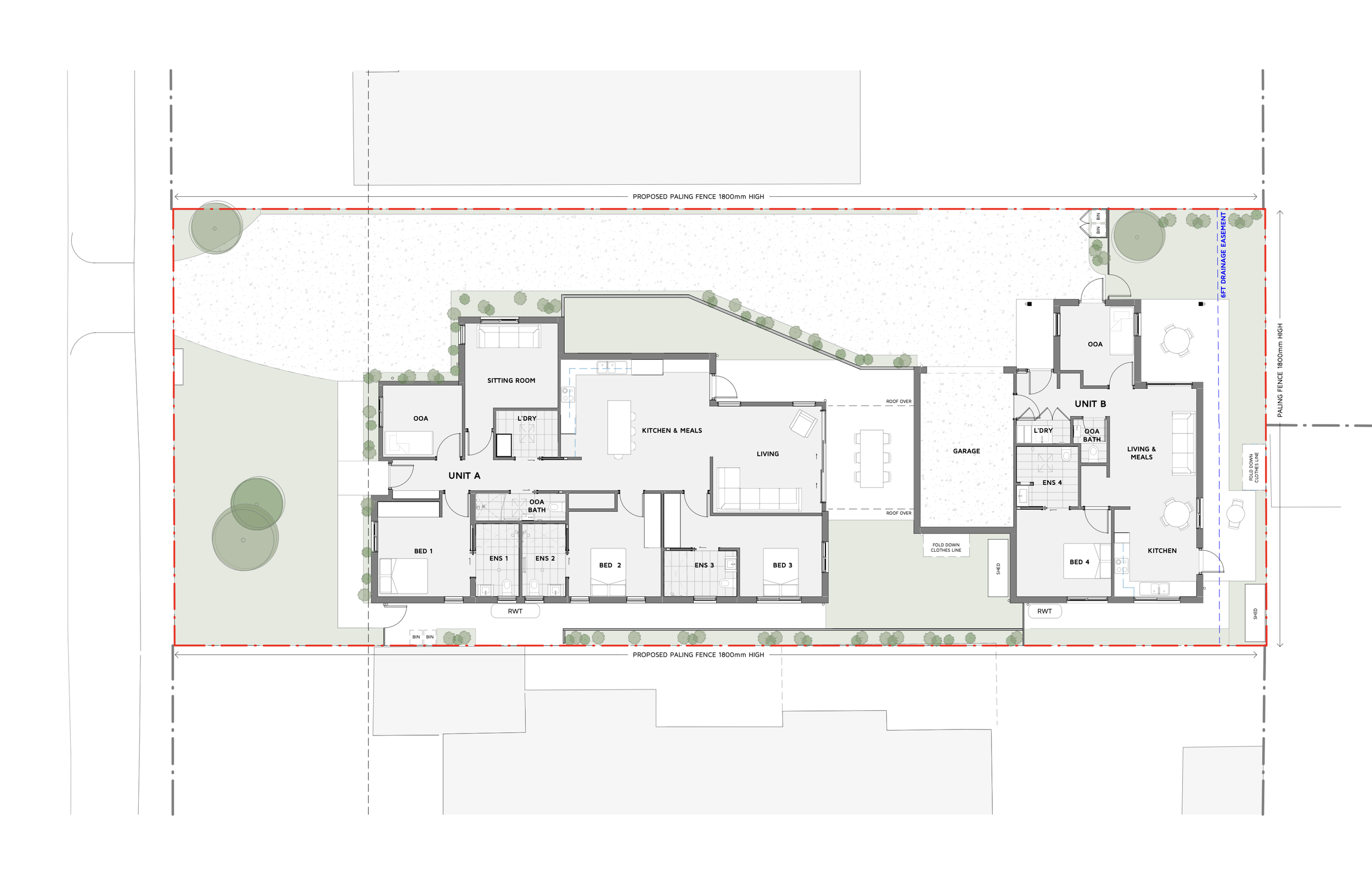
Parkdale Project, Victoria

The Parkdale Project involves the creation of two dwellings in a villa formation, a 3-bedroom villa plus staff accommodation for improved liveability - conforming to Silver Standard - and a 1-bedroom ‘robust’ classified dwelling at the rear of the site. Staff accommodation is provided for both dwellings.

 The robust classification of the rear villa means that the interiors have special features, including linings of impact check plasterboard, more resilient laminated glazing, anti-ligature tap ware and fittings and fixed panels in the vanity to isolate the plumbing infrastructure. Both dwellings will also have an uninterrupted power supply (UPS) installed.

The project is being documented at this time.

Previous
Previous

Hance Street Housing, Yarraville

Next
Next

Sacred Heart Mission Aged Care